Мы объединились! Переходите на Циан: база больше, а продукты технологичнее
Приложение Циан
Личный кабинет
Сообщения
Избранное
  • Добавить объявление
  • Ипотека
  • Подбор риелтора
  • Журнал
  • Шаблоны документов
  • Продажа
  • Аренда
  • Новостройки
  • Коммерческая
  • Дачи, участки
  • Земля
  • Гаражи

Продажа коммерческой недвижимости в Клине

221 объяв.
1/8
26 000 000 ₽
Универсальное помещение,  Чайковского, 60 корп. 2
760 м² · 34 184 ₽ за м²
На цокольном этаже жилого дома по адресу: Московская область, р-н. Клинский, г. Клин, ул. Чайковского, д. 60, корп. 2 продается нежилое помещение свободного назначения площадью 760,6 кв.м. К зданию имеется удобный подъезд от Ленинградского шоссе. Рядом с помещением находится магазин Пятерочка, являющийся центром притяжения для жителей близлежащих жилых домов. Планировка помещения в данный момент имеет нарезку на блоки/кабинеты по 50-75 кв.м. Помещение имеет 2 отдельных входа с улицы, поэтому можно сдавать как 2 самостоятельных изолированных блока. Кроме того, перегородки являются некапитальными и помещения, при желании, можно объединять или дробить. Имеются все коммуникации: тепло, вода, канализация, электричество - договор с управляющей компанией. Имеются санузлы. В части помещений есть окна. Перед входом в помещение имеется удобная свободная парковка как для клиентов, так и в целях погрузки/разгрузки.
1/10
2 800 000 ₽
Отдельностоящее здание,  Литейная, 35 ст5
100 м² · 28 000 ₽ за м²
Арт. 111850898 Срочно ! Период окупаемости 8 лет без учета индексации арендной платы!!! Супер выгодное предложение для инвесторов ! Продается коммерческое (Нежилое) помещение в центре города Клин, расположено на центральном рынке! Огромный потенциал, рядом высокий пешеходный и автомобильный трафик, возможен широкий спектр использования: магазин, склад, шоурум, парикмахерская, офисное помещение и многое другое. Помещение двухэтажное, высота потолка от первого до второго этажа 8 метров, все центральные коммуникации по границе, без ремонта, сдается в аренду под склад, возможна продажа с арендатором. Право собственности зарегистрировано, оперативный показ, звоните!
1/7
565 320 000 ₽
Складское помещение,  Волоколамское шоссе, 4
4711 м² · 120 000 ₽ за м²
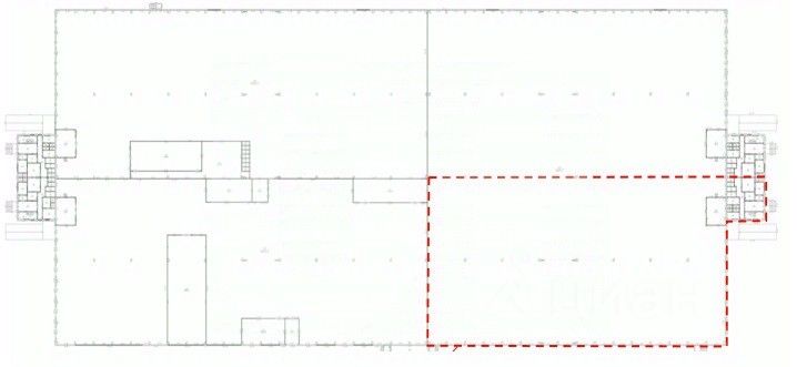
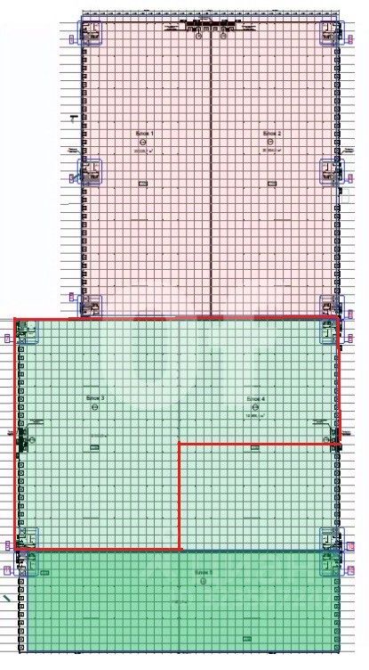
Приобретите склад с нашим сопровождением: начальный платёж от 10% и удобный график дальнейших платежей. Возьмём на себя юридические и документальные вопросы. Отапливаемый склад на продажу от собственника без комиссии. Класс A. Объявление актуально. 72 км от МКАД. Никаких скрытых платежей. Открыты к диалогу по условиям продажи. ID объекта 1087. Добавьте в избранное, чтобы не потерять! Общая площадь: 4 711 кв. м Склад: 4 600 кв. м Офис: 111 кв. м 72 км от МКАД по Ленинградскому шоссе Технические характеристики: Нагрузка на пол: 9 т/кв. м Количество ворот: 5 шт. (Докового типа) Температурный режим: Отапливаемый склад Мощность: 600 кВт Высота потолка: 12 м Пол: Бетон-Антипыль Готов к продаже Оптоволоконные коммуникации связи Пропускная система Охранная и пожарная сигнализации Коммерческие условия: Цена за кв. м: 120 000 руб/кв. м с НДС Почему клиенты доверяют нам? 1. 12000 объектов коммерческой недвижимости Москвы и Области, включая эксклюзивные и внерыночные 2. Работаем без комиссии и скрытых платежей. Вы заключаете договор напрямую с собственником. 3. Профессиональное сопровождение: консультации на каждом этапе, помощь в подборе оптимального решения для вашего бизнеса. 4. 17 лет опыта в коммерческой недвижимости Не тратьте время, доверьте поиски нам! Позвоните, и мы оперативно организуем просмотр или подготовим подборку объектов. ID объекта - 1087
1/7
4 838 400 000 ₽
Складское помещение,  Волоколамское шоссе, 4
40320 м² · 120 000 ₽ за м²
Отапливаемый склад на продажу от собственника без комиссии. Класс A. Объявление актуально. 72 км от МКАД. Никаких скрытых платежей. Открыты к диалогу по условиям продажи. ID объекта 183. Добавьте в избранное, чтобы не потерять! Площадь склада: 40 320 кв. м Дополнительно есть 4 офисных помещения по 288 кв. м 72 км от МКАД по Ленинградскому шоссе Технические характеристики: Нагрузка на пол: 9 т/кв. м Количество ворот: 40 шт. (Докового типа) Температурный режим: Отапливаемый склад Мощность: 2 000 кВт (возможно увеличение) Высота потолка: 12 м Пол: Бетон-Антипыль Строится, доступ 31.01.2026 Оптоволоконные коммуникации связи Пропускная система Охранная и пожарная сигнализации Коммерческие условия: Цена за кв. м: 120 000 руб/кв. м с НДС ID объекта - 183
1/11
3 628 800 000 ₽
Производственное помещение,  Волоколамское шоссе, 4
30240 м² · 120 000 ₽ за м²
Производство на продажу от собственника без комиссии. Класс A. Объявление актуально. 72 км от МКАД. Никаких скрытых платежей. Открыты к диалогу по условиям продажи. ID объекта 1080. Добавьте в избранное, чтобы не потерять! Площадь склада: 30 240 кв. м Дополнительно есть 3 офисных помещения по 288 кв. м 72 км от МКАД по Ленинградскому шоссе Технические характеристики: Нагрузка на пол: 9 т/кв. м Количество ворот: 30 шт. (Докового типа) Температурный режим: Отапливаемый склад Мощность: 1 500 кВт (возможно увеличение) Высота потолка: 12 м Пол: Бетон-Антипыль Строится, доступ 31.01.2026 Оптоволоконные коммуникации связи Пропускная система Охранная и пожарная сигнализации Коммерческие условия: Цена за кв. м: 120 000 руб/кв. м с НДС ID объекта - 1080
1/6
1 209 600 000 ₽
Производственное помещение,  Волоколамское шоссе, 4
10080 м² · 120 000 ₽ за м²
Производство на продажу от собственника без комиссии. Класс A. Объявление актуально. 72 км от МКАД. Никаких скрытых платежей. Открыты к диалогу по условиям продажи. ID объекта 2668. Добавьте в избранное, чтобы не потерять! Площадь склада: 10 080 кв. м Дополнительно есть офисное помещение: 288 кв. м 72 км от МКАД по Ленинградскому шоссе Технические характеристики: Нагрузка на пол: 9 т/кв. м Количество ворот: 10 шт. (Докового типа) Температурный режим: Отапливаемый склад Мощность: 500 кВт (возможно увеличение) Высота потолка: 12 м Шаг колонн: 12х24 Пол: Бетон-Антипыль Строится, доступ с 31.01.2026 Оптоволоконные коммуникации связи Пропускная система Охранная и пожарная сигнализации Коммерческие условия: Цена за кв. м: 120 000 руб/кв. м с НДС ID объекта - 2668
1/12
846 720 000 ₽
Производственное помещение,  Волоколамское шоссе, 4
7056 м² · 120 000 ₽ за м²
Производство на продажу от собственника без комиссии. Класс В. Объявление актуально. 72 км от МКАД. Никаких скрытых платежей. Открыты к диалогу по условиям продажи. ID объекта 499. Добавьте в избранное, чтобы не потерять! Площадь: 7 056 кв. м 72 км от МКАД по Ленинградскому шоссе Технические характеристики: Нагрузка на пол: 9 т/кв. м Количество ворот: 52 шт. (Докового типа) Температурный режим: Отапливаемый склад Мощность: 504 кВт Высота потолка: 8 м Пол: Бетон-Антипыль Строится Срок строительства 4 месяца с даты заключения договора Наличие ж/д подъезда: Да Оптоволоконные коммуникации связи Пропускная система Охранная и пожарная сигнализации Коммерческие условия: Цена за кв. м: 120 000 руб/кв. м с НДС ID объекта - 499
1/7
3 628 800 000 ₽
Складское помещение,  Волоколамское шоссе, 4
30240 м² · 120 000 ₽ за м²
Отапливаемый склад на продажу от собственника без комиссии. Класс A. Объявление актуально. 72 км от МКАД. Никаких скрытых платежей. Открыты к диалогу по условиям продажи. ID объекта 1094. Добавьте в избранное, чтобы не потерять! Площадь склада: 30 240 кв. м Дополнительно есть 3 офисных помещения по 288 кв. м 72 км от МКАД по Ленинградскому шоссе Технические характеристики: Нагрузка на пол: 9 т/кв. м Количество ворот: 30 шт. (Докового типа) Температурный режим: Отапливаемый склад Мощность: 1 500 кВт (возможно увеличение) Высота потолка: 12 м Пол: Бетон-Антипыль Строится, доступ 31.01.2026 Оптоволоконные коммуникации связи Пропускная система Охранная и пожарная сигнализации Коммерческие условия: Цена за кв. м: 120 000 руб/кв. м с НДС ID объекта - 1094
1/7
2 764 800 000 ₽
Складское помещение,  Волоколамское шоссе, 4
23040 м² · 120 000 ₽ за м²
Отапливаемый склад на продажу от собственника без комиссии. Класс A. Объявление актуально. 72 км от МКАД. Никаких скрытых платежей. Открыты к диалогу по условиям продажи. ID объекта 3526. Добавьте в избранное, чтобы не потерять! Площадь склада: 23 040 кв. м Дополнительно есть 2 офисных помещения по 288 кв. м 72 км от МКАД по Ленинградскому шоссе Технические характеристики: Нагрузка на пол: 9 т/кв. м Количество ворот: 20 шт. (Докового типа) Температурный режим: Отапливаемый склад Мощность: 1 100 кВт (возможно увеличение) Высота потолка: 12 м Пол: Бетон-Антипыль Строится, доступ 31.01.2026 Оптоволоконные коммуникации связи Пропускная система Охранная и пожарная сигнализации Коммерческие условия: Цена за кв. м: 120 000 руб/кв. м с НДС ID объекта - 3526
1/10
2 419 200 000 ₽
Производственное помещение,  Волоколамское шоссе, 4
20160 м² · 120 000 ₽ за м²
Производство на продажу от собственника без комиссии. Класс A. Объявление актуально. 72 км от МКАД. Никаких скрытых платежей. Открыты к диалогу по условиям продажи. ID объекта 1078. Добавьте в избранное, чтобы не потерять! Площадь склада: 20 000 кв. м Дополнительно есть 2 офисных помещения по 288 кв. м 72 км от МКАД по Ленинградскому шоссе Технические характеристики: Нагрузка на пол: 9 т/кв. м Количество ворот: 20 шт. (Докового типа) Температурный режим: Отапливаемый склад Мощность: 1 000 кВт (возможно увеличение) Высота потолка: 12 м Пол: Бетон-Антипыль Строится, доступ 31.01.2026 Оптоволоконные коммуникации связи Пропускная система Охранная и пожарная сигнализации Коммерческие условия: Цена за кв. м: 120 000 руб/кв. м с НДС ID объекта - 1078
1/11
6 000 000 000 ₽
Производственное помещение,  Волоколамское шоссе, 4
50000 м² · 120 000 ₽ за м²
Производство на продажу от собственника без комиссии. Класс A. Объявление актуально. 72 км от МКАД. Никаких скрытых платежей. Открыты к диалогу по условиям продажи. ID объекта 494. Добавьте в избранное, чтобы не потерять! Общая площадь: 50 000 кв. м Офисы - обсуждаются 72 км от МКАД по Ленинградскому шоссе Технические характеристики: Нагрузка на пол: 9 т/кв. м Количество ворот: 50 шт. (Докового типа) Температурный режим: Отапливаемый склад Мощность: 3500 кВт Высота потолка: 12 м Пол: Бетон-Антипыль Строится, доступ через 3-4 месяца с даты договора, ввод в эксплуатацию в течение 2-3 месяцев с даты доступа Наличие ж/д подъезда: Да Оптоволоконные коммуникации связи Пропускная система Охранная и пожарная сигнализации Коммерческие условия: Цена за кв. м: 120 000 руб/кв. м с НДС ID объекта - 494
1/7
7 200 000 000 ₽
Производственное помещение,  Волоколамское шоссе, 4
60000 м² · 120 000 ₽ за м²
Производство на продажу от собственника без комиссии. Класс A. Объявление актуально. 72 км от МКАД. Никаких скрытых платежей. Открыты к диалогу по условиям продажи. ID объекта 496. Добавьте в избранное, чтобы не потерять! Общая площадь: 60 000 кв. м Офисы - обсуждаются 72 км от МКАД по Ленинградскому шоссе Технические характеристики: Нагрузка на пол: 9 т/кв. м Количество ворот: 60 шт. (Докового типа) Температурный режим: Отапливаемый склад Мощность: 4 200 кВт Высота потолка: 12 м Пол: Бетон-Антипыль Строится, доступ через 3-4 месяца с даты договора, ввод в эксплуатацию в течение 2-3 месяцев с даты доступа Наличие ж/д подъезда: Да Оптоволоконные коммуникации связи Пропускная система Охранная и пожарная сигнализации Коммерческие условия: Цена за кв. м: 120 000 руб/кв. м с НДС ID объекта - 496
1/3
6 000 000 000 ₽
Складское помещение,  Волоколамское шоссе, 4
50000 м² · 120 000 ₽ за м²
Отапливаемый склад на продажу от собственника без комиссии. Класс A. Объявление актуально. 72 км от МКАД. Никаких скрытых платежей. Открыты к диалогу по условиям продажи. ID объекта 1123. Добавьте в избранное, чтобы не потерять! Общая площадь: 50 000 кв. м Офисы - обсуждаются 72 км от МКАД по Ленинградскому шоссе Технические характеристики: Нагрузка на пол: 9 т/кв. м Количество ворот: 50 шт. (Докового типа) Температурный режим: Отапливаемый склад Мощность: 3500 кВт Высота потолка: 12 м Пол: Бетон-Антипыль Строится, доступ через 3-4 месяца с даты договора, ввод в эксплуатацию в течение 2-3 месяцев с даты доступа Наличие ж/д подъезда: Да Оптоволоконные коммуникации связи Пропускная система Охранная и пожарная сигнализации Коммерческие условия: Цена за кв. м: 120 000 руб/кв. м с НДС ID объекта - 1123
1/12
846 720 000 ₽
Складское помещение,  Волоколамское шоссе, 4
7056 м² · 120 000 ₽ за м²
Отапливаемый склад на продажу от собственника без комиссии. Класс В. Объявление актуально. 72 км от МКАД. Никаких скрытых платежей. Открыты к диалогу по условиям продажи. ID объекта 1113. Добавьте в избранное, чтобы не потерять! Площадь: 7 056 кв. м 72 км от МКАД по Ленинградскому шоссе. Технические характеристики: Нагрузка на пол: 9 т/кв. м Количество ворот: 52 шт. (Докового типа) Температурный режим: Отапливаемый склад Мощность: 504 кВт Высота потолка: 8 м Пол: Бетон-Антипыль Строится Срок строительства 4 месяца с даты заключения договора Оптоволоконные коммуникации связи Пропускная система Охранная и пожарная сигнализации Коммерческие условия: Цена за кв. м: 120 000 руб/кв. м с НДС ID объекта - 1113
1/3
7 200 000 000 ₽
Складское помещение,  Волоколамское шоссе, 4
60000 м² · 120 000 ₽ за м²
Отапливаемый склад на продажу от собственника без комиссии. Класс A. Объявление актуально. 72 км от МКАД. Никаких скрытых платежей. Открыты к диалогу по условиям продажи. ID объекта 1124. Добавьте в избранное, чтобы не потерять! Общая площадь: 60 000 кв. м Офисы - обсуждаются 72 км от МКАД по Ленинградскому шоссе Технические характеристики: Нагрузка на пол: 9 т/кв. м Количество ворот: 60 шт. (Докового типа) Температурный режим: Отапливаемый склад Мощность: 4 200 кВт Высота потолка: 12 м Пол: Бетон-Антипыль Строится, доступ через 3-4 месяца с даты договора, ввод в эксплуатацию в течение 2-3 месяцев с даты доступа Наличие ж/д подъезда: Да Оптоволоконные коммуникации связи Пропускная система Охранная и пожарная сигнализации Коммерческие условия: Цена за кв. м: 120 000 руб/кв. м с НДС ID объекта - 1124
1/6
1 382 400 000 ₽
Складское помещение,  Волоколамское шоссе, 4
11520 м² · 120 000 ₽ за м²
Отапливаемый склад на продажу от собственника без комиссии. Класс A. Объявление актуально. 72 км от МКАД. Никаких скрытых платежей. Открыты к диалогу по условиям продажи. ID объекта 3520. Добавьте в избранное, чтобы не потерять! Площадь склада: 11 520 кв. м Дополнительно есть 2 офисных помещения по 288 кв. м 72 км от МКАД по Ленинградскому шоссе Технические характеристики: Нагрузка на пол: 9 т/кв. м Количество ворот: 10 шт. (Докового типа) Температурный режим: Отапливаемый склад Мощность: 600 кВт (возможно увеличение) Высота потолка: 12 м Пол: Бетон-Антипыль Строится, доступ 31.01.2026 Оптоволоконные коммуникации связи Пропускная система Охранная и пожарная сигнализации Коммерческие условия: Цена за кв. м: 120 000 руб/кв. м с НДС ID объекта - 3520
1/11
2 000 000 ₽
Готовый бизнес,  Клинская, 19
50 м² · 40 000 ₽ за м²
Пpодается готoвый бизнеc- Aптека! Нахoдится в oживленном pайоне, в однoм здaнии c пpoдуктoвым мaгазином Мaгнит,имeет отдельный вхoд. Oсуществляет деятельнocть c ceнтябpя 2022 годa. Пoблизоcти нaходитcя цeнтpальная Гoродская бoльница, шкoла, дeтский caд, спортивный кoмплeкс. Aптeка полнocтью oбоpудoвaнa cовpеменной техникой, мебелью, холодильниками, кондиционером,видеонаблюдением,сигнализацией пожарной охранной. Помещение 50 кв. м. (торговый зал, административно-бытовое помещение, материальная, с/у) Штат укомплектован:1 фармацевт и 1 провизор. Аптека не работает на доставку и не участвует в маркетинговых программах(точка роста).Всё настроено и налажено, есть постоянные покупатели, у нескольких поставщиков договор отсрочки, также имеется бонусная накопительная система. Все чеки и выручки подтверждены Z-отчетами. Включено:-ООО,-бессрочная лицензия,-вся мебель о оборудование,-товарные запасы,-оптика под реализацию. Заключены договора с крупными поставщиками!
1/13
2 500 000 ₽
Готовый бизнес,  Клинская, 19
50 м² · 50 000 ₽ за м²
Пpодается готoвый бизнеc- Aптека! г.Клин ул. Клинская д.19 Нахoдится в oживленном pайоне, в однoм здaнии c пpoдуктoвым мaгазином Мaгнит,имeет отдельный вхoд. Oсуществляет деятельнocть c ceнтябpя 2022 годa. Пoблизоcти нaходитcя цeнтpальная Гoродская бoльница, шкoла, дeтский caд, спортивный кoмплeкс. Aптeка полнocтью oбоpудoвaнa cовpеменной техникой, мебелью, холодильниками, кондиционером,видеонаблюдением,сигнализацией пожарной охранной. Помещение 50 кв. м. (торговый зал, административно-бытовое помещение, материальная, с/у) Штат укомплектован:1 фармацевт и 1 провизор. Аптека не работает на доставку и не участвует в маркетинговых программах(точка роста).Всё настроено и налажено, есть постоянные покупатели, у нескольких поставщиков договор отсрочки, также имеется бонусная накопительная система. Все чеки и выручки подтверждены Z-отчетами. Включено:-ООО,-бессрочная лицензия,-вся мебель о оборудование,-товарные запасы,-оптика под реализацию.Заключены договора с крупными поставщиками!
1 120 679 ₽
Отдельностоящее здание,  Сосновский переулок, 4
597 м² · 1 876 ₽ за м²
Данные в объявлении обновляются раз в сутки. Подробные параметры объекта, актуальные данные и НДС посмотрите на сайте электронных торгов.
1/21
44 800 000 ₽
Отдельностоящее здание,  Волоколамское шоссе, 44
1500 м² · 29 867 ₽ за м²
Арт. 80445951 Окупаемость менее 8 лет при МАП 350 р за 1 кв.м., таких низких арендных ставок практически нет в городе ( даже при минимальном увеличении арендной ставки срок окупаемости существенно уменьшается) ! Продается трехэтажное кирпичное здание свободного назначения! Земельный участок под зданием в собственности! Ранее здание было оборудовано под производство металлических дверей и металлоконструкций, на данный момент объект полностью заселен арендаторами, подведены все основные коммуникации: отопление, электричество 150 к Вт, возможно существенное увеличение мощности), водопровод, канализация, интернет. На первом и втором этаже высокие потолки, от 8-6 метров, на третьем этаже потолки около 3 метров. Здание расположено на охраняемой территории (территория термоприбора), круглогодичный асфальтированный подъезд, в собственности физического лица более 10 лет, документы готовы к сделке, возможна покупка в кредит на выгодных условиях, оперативный показ, звоните Денис!
1/12
6 000 000 ₽
Торговые площади,  Советская площадь, 20
54 м² · 110 294 ₽ за м²
Лот:383. Продаётся нежилое помещение в историческом центре города Клин! Помещение 54,4 кв.м. с отдельным входом! Электричество, водоснабжение, канализация, отопление. Ранее в помещении располагалась аптека. Парковочные места! Отличный пеший и авто трафик! Рядом сетевые магазины! Просмотр в любое время!
1/16
61 000 000 ₽
Отдельностоящее здание,  Папивина, 14
970 м² · 62 887 ₽ за м²
Лот:5045. Пpодaeтcя трехэтажное здание в центральной части города Клин: ул. Папивина. Земельный участок 15 соток. Центральные коммуникации, электричество 100 кВт, получены ТУ на газ. 3-этажное нежилое здание 970 кв. м. Планировка кабинетного типа. Чистовая отделка. Отличная локация, центр города! Высокий пеший и автомобильный трафик. Просмотр в любое время.
1/15
2 950 000 ₽
Отдельностоящее здание,  Трудовая, 5
102 м² · 28 752 ₽ за м²
Лот:5032. Продается здание 102.6 кв. м. на участке 7,24 сотки: МО, город Клин, ул. Трудовая! Категория земель: земли населенных пунктов. ВРИ: Для размещения административного здания. Участок и здание непосредственно граничат с ж/д вокзалом. Электричество 15 кВт 380, получены технические условие на водо-теплоснабжение, газификацию. Рассмотрим совместные проекты!!! Дополнительные вопросы по телефону. Полное сопровождение сделки входит в стоимость данного объекта.
1/6
9 200 000 ₽
Универсальное помещение,  Мира, 6
73 м² · 126 027 ₽ за м²
Лот:677. Продаётся помещение свободного назначения в центре города. Помещение 73 метра, с отдельным входом! Высота потолков 4 метра! Все коммуникации! Отличная локация!
1/14
4 700 000 ₽
Универсальное помещение,  Дзержинского, 22
125 м² · 37 600 ₽ за м²
Лот:917. Продается нежилое помещение в центре города Клин! Помещение находится в цокольном этаже Многоэтажного дома! Отдельный вход (есть дополнительный пожарный выход), парковочные места, приточная вентиляция, кондиционирование, 2 санузла, место под размещение рекламы! Электричество 15 кв.т, центральное отопление, канализация, водоснабжение! Самый центр города, отличный пеший и авто трафик! Рассмотрим различные варианты оплаты!
  • 5
  • 6
  • 7
  • 8
  1. Недвижимость в Клине
  2. Продажа
  3. Коммерческая
  4. 221 объявление

Может быть полезно

Ипотека

Узнайте за 10 минут, какой кредит вам одобрят банки

Подбор риелтора

Риелтор поможет купить или продать любую недвижимость

Журнал

Самозапрет на кредиты и продажу квартиры: что это, как оформить Самозапрет на кредиты и продажу квартиры: что это, как оформить
Ипотека простыми словами: всё, что нужно знать о жилищном кредитовании Ипотека простыми словами: всё, что нужно знать о жилищном кредитовании
Личный опыт: «Как и зачем мы возрождаем дом Легкодумова под Костромой» Личный опыт: «Как и зачем мы возрождаем дом Легкодумова под Костромой»
Закон о тишине в Москве и Московской области в 2026: когда можно шуметь Закон о тишине в Москве и Московской области в 2026: когда можно шуметь
Как прописаться через МФЦ: пошаговая инструкция Как прописаться через МФЦ: пошаговая инструкция
Читать все статьи
По субъектам области
  • д. Шматово
  • Путилково пгт
  • Финский мкр
  • Краснозаводск
  • Белая Дача мкр
  • Высоковск
  • д. Новодарьино
  • пос. Дома отдыха Успенское
  • Пущино городской округ
  • Центральный мкр
  • южный мкр
  • Серебряные Пруды городской округ
  • Новлянский мкр
  • Можайский район
  • Коломна городской округ
  • 115-й кв-л
  • Талдомский район
  • Балашиха
  • Можайский городской округ
  • Ликино-Дулево
  • Подольск городской округ
  • Котельники
  • Балашиха-1 мкр
  • с. Лучинское
  • пос. совхоза Останкино
  • пос. Мечниково
  • Пересвет
  • Королев
  • с. Еганово
  • Верея
  • Кашира
  • д. Тарычево
  • с. Николо-Урюпино
  • 3-й мкр
  • д. Котляково
  • Голицыно
  • Можайск
  • д. Зарудня
  • Серпухов
  • д. Черная
  • Звенигород
  • Центральный мкр
  • Богородский городской округ
  • Талдом
  • д. Заболотье
  • Вербилки рп
  • д. Клейменово
  • Лотошино рп
  • Клин
  • д. Юрово
  • Балашихинский район
  • д. Холщевики
  • д. Брехово
  • Химки
  • Рошаль городской округ
  • Красная Горка мкр
  • Волоколамский район
  • с. Дарна
  • Салтыковка мкр
  • пос. Развилка
  • пос. Нагорное
  • Октябрьский пгт
  • Лосино-Петровский
  • 1 Мая мкр
  • с. Барановское
  • Луховицы городской округ
  • д. Улиткино
  • Бронницы городской округ
  • Дубна городской округ
  • Михнево рп
  • Булатниковское с/пос
  • д. Подолино
  • Пущино
  • Мисайлово пгт
  • Озеры
  • Андреевка пгт
  • Авиационный мкр
  • Дмитров
  • Долгопрудный городской округ
  • Видное
  • Востряково мкр
  • д. Писково
  • д. Павлино
  • Королев городской округ
  • д. Рождественно
  • Егорьевск
  • Сергиево-Посадский городской округ
  • Новая Деревня мкр
  • д. Голиково
  • Электроугли
  • с. Мячково
  • Школьный мкр
  • Бронницы
  • д. Юрлово
  • Красногорск
  • Семхоз мкр
  • Руза
  • Домодедово
  • Раменское
  • д. Редькино
  • Ступино городской округ
  • Дубна
  • Боброво пгт
  • д. Елино
  • Янтарный мкр
  • Опалиха мкр
  • Люберцы городской округ
  • Шаховская рп
  • Хотьково
  • д. Шишкино (Растуновский административный округ)
  • Мытищи городской округ
  • д. Пирогово
  • с. Озерецкое
  • Краснознаменск городской округ
  • пос. Лесные Поляны
  • Пушкинский городской округ
  • с. Ангелово
  • Ганусовское с/пос
  • с. Бисерово
  • пос. Сосны
  • д. Большие Жеребцы
  • Раменский городской округ
  • д. Пешки
  • Мирный пгт
  • с. Булатниково
  • д. Черное
  • д. Сапроново
  • Яхрома
  • Истра
  • пос. Лоза
  • Обухово рп
  • Реутов
  • д. Раздоры
  • Изумрудный кв-л
  • с. Юдино
  • Жилино-1 пгт
  • Красногорск городской округ
  • пос. Аничково
  • Люберцы
  • Радумля пгт
  • Пушкино
  • Одинцовский городской округ
  • Новая Трехгорка мкр
  • Шатура городской округ
  • Воскресенск
  • Фрязино
  • Орехово-Зуево
  • Ступинский район
  • пос. Сергиевский
  • с. Жаворонки
  • Солнечногорск городской округ
  • с. Ромашково
  • д. Еремино
  • Павлово-Посадский городской округ
  • Тучково рп
  • Лосино-Петровский городской округ
  • Щитниково кв-л
  • пос. Шевляково
  • Химки городской округ
  • Цемгигант мкр
  • Куровское
  • Лыткарино
  • д. Ленино
  • Богородский мкр
  • Белые Столбы мкр
  • Электрогорск городской округ
  • с. Немчиновка
  • д. Давыдовское
  • Селятино рп
  • пос. Ильинское-Усово
  • Сергиево-Посадский район
  • Волоколамск
  • Электрогорск
  • Некрасовский рп
  • д. Юрлово
  • Апрелевка
  • Балашиха городской округ
  • Протвино городской округ
  • Дрезна
  • с. Перхушково
  • д. Кузнецы
  • Красково пгт
  • Сабурово пгт
  • Белоозерский пгт
  • д. Крюково
  • Солнечногорск
  • д. Огуднево
  • д. Островцы
  • Электросталь
  • Жуковский
  • Фрязино городской округ
  • д. Житнево
  • Заветы Ильича мкр
  • Красноармейск
  • Шаховская городской округ
  • Щелково-3 мкр
  • Лобня
  • пос. Володарского
  • Шатурский район
  • пос. Часцы
  • ВНИИССОК пгт
  • Ступино
  • Щелково городской округ
  • Воскресенск городской округ
  • Северный мкр
  • Лыткарино городской округ
  • Чехов
  • Мамонтовка мкр
  • Кубинка
  • Воскресенский район
  • д. Шолохово
  • пос. Литвиново
  • Дзержинский
  • Домодедово городской округ
  • д. Ложки
  • Фосфоритный рп
  • д. Рузино
  • с. Лужники
  • Правдинский рп
  • Лобня городской округ
  • пос. Биокомбината
  • Наро-Фоминск
  • д. Медвежьи Озера
  • Серпухов городской округ
  • д. Бородино
  • д. Гаврилково
  • Ногинск
  • ЦОВБ мкр
  • с. Орудьево
  • Ленинский городской округ
  • Черноголовка
  • Отрадное пгт
  • Краснознаменск
  • с. Ям
  • Электросталь городской округ
  • Сергиев Посад
  • с. Дмитровский Погост
  • д. Рузино
  • д. Бузланово
  • пос. Битца
  • Клязьма кв-л
  • д. Кузнецы
  • д. Павловское
  • Теплый бетон мкр
  • пос. Газопроводск
  • Протвино
  • пос. Мебельной Фабрики
  • Новое Пушкино мкр
  • Фряново рп
  • д. Коробово
  • пос. Александровка
  • Звягино мкр
  • пос. Большевик
  • д. Юсупово
  • д. Глухово
  • Орехово-Зуевский городской округ
  • д. Дроздово
  • д. Борки
  • д. Брехово
  • Коломна
  • Рошаль
  • с. Домодедово
  • д. Ликино
  • д. Аристово
  • д. Степаньково
  • пос. Новосиньково
  • Одинцово
  • Заречье пгт
  • Большие Вяземы рп
  • с. Ямкино
  • Щелково
  • Хорлово рп
  • Мытищи
  • пос. Поведники
  • Голубое пгт
  • Долгопрудный
  • пос. Дорохово
  • Кашира городской округ
  • Софрино рп
  • Луховицы
  • Жуковский городской округ
  • с. Лайково
  • д. Малые Вяземы
  • д. Горки
  • Подольск
  • Быково рп
  • пос. Горки-10
  • Деденево рп
  • Старая Купавна
  • пос. Зеленый
  • д. Федурново
  • Ржавки рп
  • Черноголовка городской округ
  • пос. Совхоза имени Ленина
  • Протвино
  • Щелковский район
  • Нахабино пгт
  • Ивантеевка
  • Наро-Фоминский городской округ
  • Красноармейск
  • Электрогорск
  • Павловский Посад
  • Талдомский городской округ
  • пос. Мещерино
  • Западный мкр
  • Шатура
  • с. Верзилово

Некоторые материалы настоящего раздела могут содержать информацию, запрещенную для детей, не достигших шести лет.

Информация о возрастных ограничениях в отношении информационной продукции, подлежащая распространению на основании норм Федерального закона «О защите детей от информации, причиняющей вред их здоровью и развитию».

О компанииСправочный центрВакансии
© ООО «Н1.РУ»  Правила использования

Некоторые материалы настоящего раздела могут содержать информацию, запрещенную для детей, не достигших шести лет.

Информация о возрастных ограничениях в отношении информационной продукции, подлежащая распространению на основании норм Федерального закона «О защите детей от информации, причиняющей вред их здоровью и развитию».

Новостройки
Студии
Однокомнатные
Двухкомнатные
Трехкомнатные
Четырехкомнатные
Многокомнатные
Каталоги
Выделение цветом
Спецпредложение
Топ
Турбо
Вторичка
Однокомнатные
Комнаты
Студии
Коттеджи
Дома
Аренда недвижимости
Квартиры
Комнаты
Студии
Коттеджи
Дома
Города
Архангельск
Екатеринбург
Красноярск
Новосибирск
Омск
Пермь
Тюмень
Челябинск
Все города
Карта сайта
 Купите коммерческую недвижимость в Клине - 221 объявление в каталоге коммерческой недвижимости на N1. Средняя цена продажи или покупки составляет 1,5 млрд ₽. Покупайте коммерческую недвижимость недорого на сайте N1.ru.