Если цена в объявлении изменится, мы сразу сообщим вам об этом на электронную почту.
Нажимая «Подписаться», вы соглашаетесь с правилами.
продам коттедж, Рождествено, 4914 490 000 ₽
28 мая 2024
Дата публикации объявления
Обн. 28 дек 2024
Дата обновления объявления
76 263 ₽/м²
Чистая продажа
Термин "Чистая продажа" означает, что в квартире никто не прописан или
есть куда выписаться и вывезти вещи. Это лучший вариант для покупателя.
Вероятность срыва сделки минимальна.
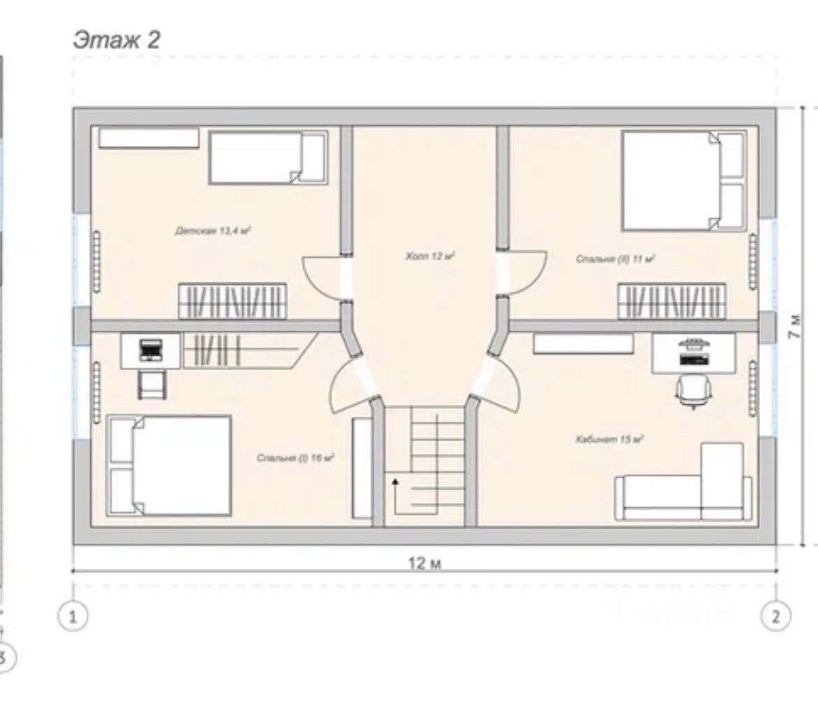
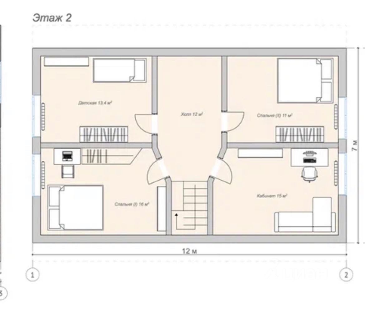
Этажей2
Площадь участка16 соток
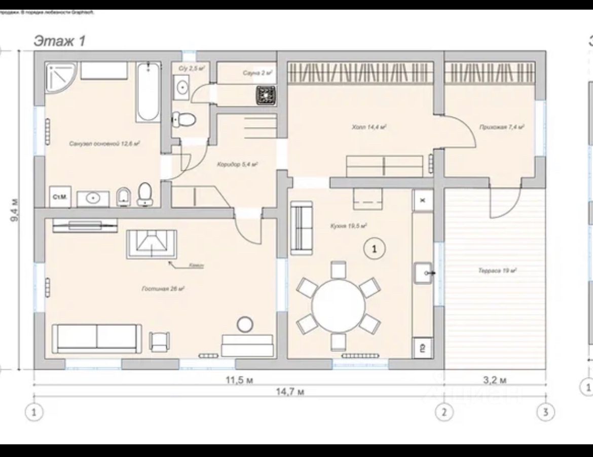
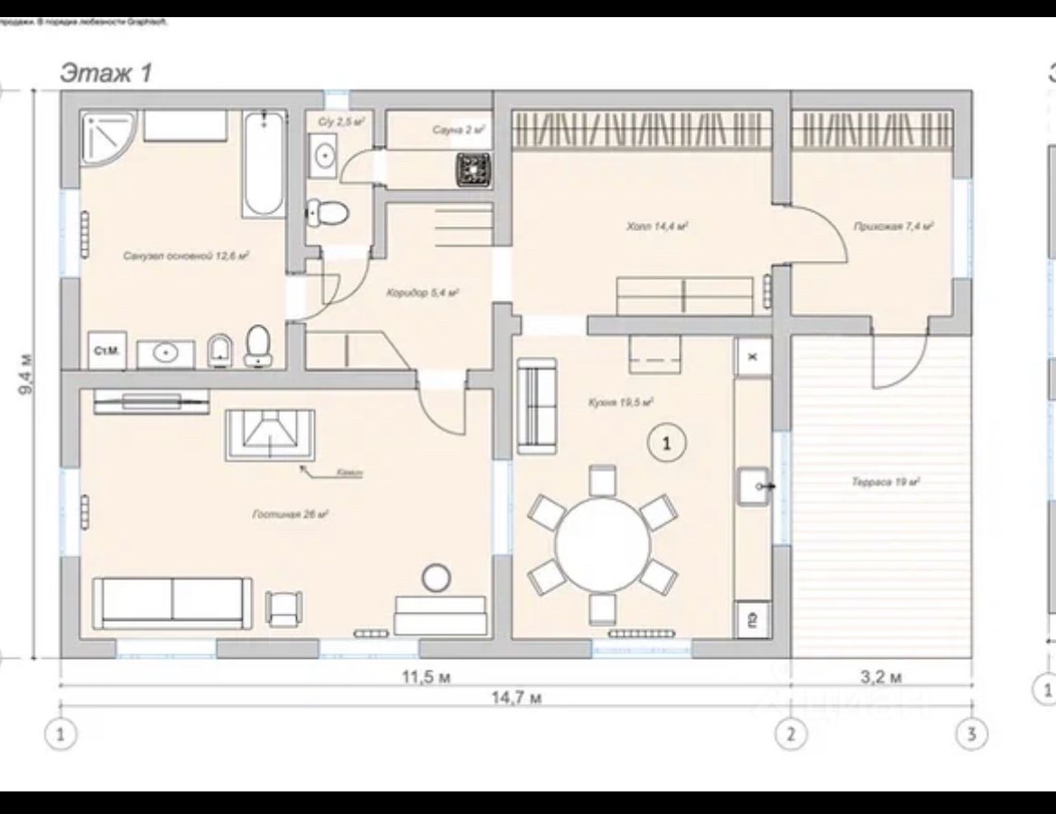
Общая площадь190 м2
Материал домадерево
ЭлектричествоЕсть
Газоснабжениецентральное
СУПЕР ЦЕНА ДО КОНЦА ГОДА!!!
Продается современный полностью деревянный дом 190 кв м на участке правильной формы 19 соток в уникальном месте Подмосковья на Истринском водохранилище (400 м до воды!) в ТСЗУ Рождествено. Двухэтажный дом 2014 года постройки в стиле шале построен из сосновых бревен и бруса и для красоты обшит имитацией бруса внутри и снаружи. Полностью готов для круглогодичного проживания. Дом поставлен на учет, имеет адрес, подходит для прописки. На 1-ом этаже дома: прихожая, гардеробная, кухня-столовая, гостиная с огромным настоящим камином, санузел 12,5 м с ванной, душевой кабиной, биде, гостевой или детский санузел с небольшой финской сауной. На втором этаже 4 спальни и несколько кладовых. Также в доме есть большая летняя терраса площадью 20 м.
СУПЕР ЦЕНА ДО КОНЦА ГОДА!!!
Продается современный полностью деревянный дом 190 кв м на участке правильной формы 19 соток в уникальном месте Подмосковья на Истринском водохранилище (400 м до воды!) в ТСЗУ Рождествено. Двухэтажный дом 2014 года постройки в стиле шале построен из сосновых бревен и бруса и для красоты обшит имитацией бруса внутри и снаружи. Полностью готов для круглогодичного проживания. Дом поставлен на учет, имеет адрес, подходит для прописки. На 1-ом этаже дома: прихожая, гардеробная, кухня-столовая, гостиная с огромным настоящим камином, санузел 12,5 м с ванной, душевой кабиной, биде, гостевой или детский санузел с небольшой финской сауной. На втором этаже 4 спальни и несколько кладовых. Также в доме есть большая летняя терраса площадью 20 м. Помимо гардеробной и прихожей, практически во всех комнатах есть больше встроенные шкафы. Интерьер дома выполнен в едином стиле, продается со всей мебелью и техникой в идеальном состоянии. Дом не требует дополнительных вложений и полностью готов к проживанию. Данный поселок ТСЗУ Рождествено находится на полуострове, окруженном Истринским водохранилищем, на конечном участке дороги - поэтому в поселке всегда почти АБСОЛЮТНАЯ тишина! Поселок огорожен, есть круглосуточная охрана, шлагбаум, камеры, уличное освещение, чистка дорог, вывоз мусора: суммарный годовой взнос за все это составляет всего 28 тысяч рублей. Ровный участок прямоугольной формы, по периметру растут высокие канадские сосны с длинной пушистой хвоей, высотой свыше 5 м, которым более 15 лет. Также на участке растут две группы туй до 7 метров, идеальной формы и густоты. Весь участок засажен идеальным многолетним газоном. Также на участке растет красивая ель и шаровидная туя. Тихие и спокойные соседи с трех сторон. На участке есть большая забетонированная и замощенная парковка на 4-5 автомобилей. На участке также расположено второе 2-х этажное строение 120 кв м, которое можно использовать под гостевой дом, баню и хозяйственный блок. Дом подключен ко всем коммуникациям, электричество центральное 15 кВт. Собственный колодец. Септик типа Топас с автоматической откачкой очищенной воды в канаву за пределы участка. Отопление и нагрев горячей воды осуществляются котлом на дизеле, расположенным в отдельном здании котельной. Запаса топлива хватает на несколько месяцев при постоянном проживании зимой. Летом расход солярки практически нулевой, поскольку используется только для подогрева воды в бойлере косвенного нагрева 200 литров. В настоящее время можно подключить к дому магистральный ГАЗ всего за 30 тысяч рублей! Вокруг поселка находятся множество пляжей и баз отдыха, где можно взять катер или лодку в аренду и хранить свой. Рядом расположены пятизвездочные отели с ресторанами и СПА. Продуктовые магазины, в том числе Магнит и Перекресток. В соседней деревне только что открылась шикарная конная база. Один взрослый собственник. В собственности более 10 лет. Полная стоимость в договоре! Оперативный показ в любое удобное для вас время!