Если цена в объявлении изменится, мы сразу сообщим вам об этом на электронную почту.
Нажимая «Подписаться», вы соглашаетесь с правилами.
продам дом, Петровское, 4549 850 000 ₽
22 мая 2025
Дата публикации объявления
Обн. 20 июня 2025
Дата обновления объявления
156 270 ₽/м²
Чистая продажа
Термин "Чистая продажа" означает, что в квартире никто не прописан или
есть куда выписаться и вывезти вещи. Это лучший вариант для покупателя.
Вероятность срыва сделки минимальна.
Этажей2
Площадь участка15 соток
Общая площадь319 м2
Материал домакирпич
ЭлектричествоЕсть
Газоснабжениецентральное
Вашему вниманию представлен уникальный объект недвижимости — современный загородный новый дом в живописном месте Подмосковья, расположенный в закрытом, охраняемом коттеджном посёлке ДНП Люкс-Проект.
Основные характеристики дома: - Площадь: Современный двухэтажный дом общей площадью 329 кв. метров. - Проектирование: Индивидуальный проект строительства 2024 года с использованием высококачественных материалов. - Интерьер: Элегантная дизайнерская отделка, современная меблировка и бытовая техника ведущих мировых производителей. - Комфорт: Высокие потолки (2,9 метра), тёплые водяные полы почти на всей территории дома.
Вашему вниманию представлен уникальный объект недвижимости — современный загородный новый дом в живописном месте Подмосковья, расположенный в закрытом, охраняемом коттеджном посёлке ДНП Люкс-Проект.
Основные характеристики дома: - Площадь: Современный двухэтажный дом общей площадью 329 кв. метров. - Проектирование: Индивидуальный проект строительства 2024 года с использованием высококачественных материалов. - Интерьер: Элегантная дизайнерская отделка, современная меблировка и бытовая техника ведущих мировых производителей. - Комфорт: Высокие потолки (2,9 метра), тёплые водяные полы почти на всей территории дома. - Круглогодичное проживание: Полностью обеспеченный всеми необходимыми коммуникациями: газоснабжение, стабильное электроснабжение, водоснабжение( всё ЦЕНТРАЛЬНОЕ).
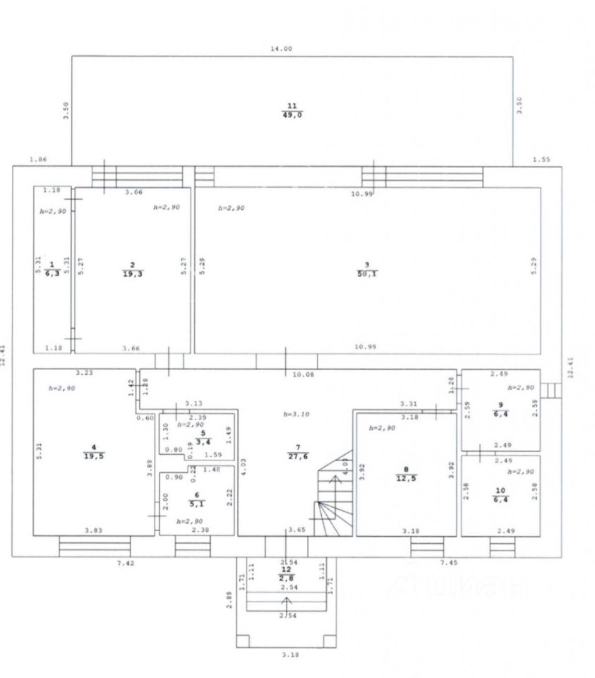
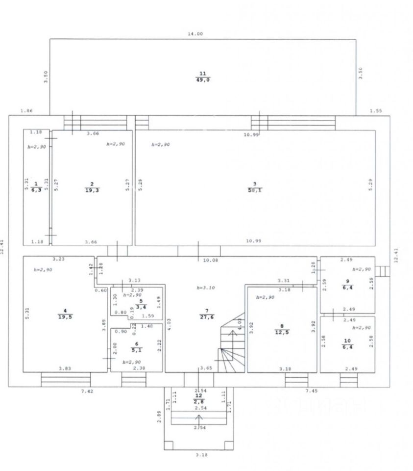
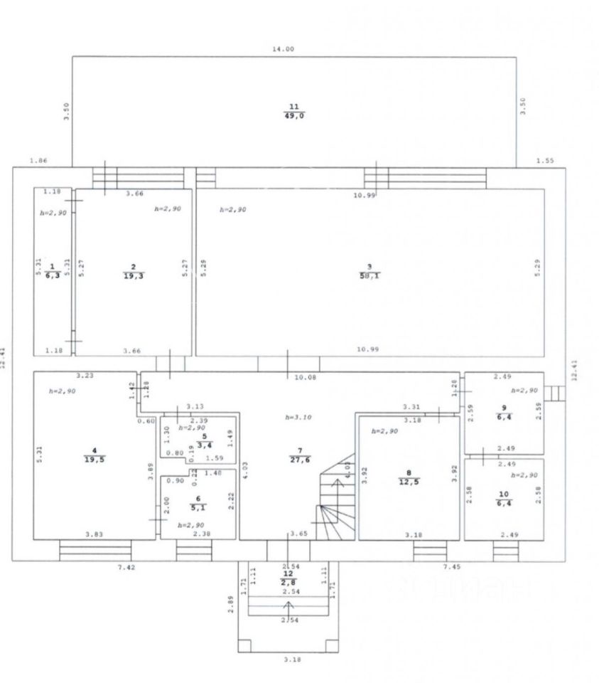
Планировка помещений: Первый этаж: Терраса, просторный холл, светлая кухня-столовая, уютная гостиная с открытым камином, отдельный санузел для гостей, спальня с гардеробной, мастер спальня с санузлом, гостевая спальня, помещение котельной.
Второй этаж: Просторная мансарда для воплощения ваших идей. По периметру всего 2 этажа- скрытое место для хранения. Планировка дома-смотрите фото.
Участок и прилегающая территория: Участок занимает площадь 15 соток, оснащен качественным ландшафтным дизайном ( газон, туи, ели) эффективным дренажем вокруг здания. Здесь также имеется крытый гараж на один автомобиль.
Инфраструктура района: - Удобство транспортного сообщения: Возможность доехать на личном транспорте либо воспользоваться регулярным пригородным сообщением электричкой до остановки Волоколамская. - В 5 минутах езды школы и детские сады. - Точка притяжения- Истринское водохранилище для активного отдыха Вашей семьи.
Платежи: 9500р. Входит обслуживание, коммунальные платежи вне зависимости сезона.
Быстрый выход на сделку, один собственник. Без обременений.
Прекрасные соседи и окружение.
Звоните, отвечу на Ваши вопросы, запишу на показ дома.