Если цена в объявлении изменится, мы сразу сообщим вам об этом на электронную почту.
Нажимая «Подписаться», вы соглашаетесь с правилами.
продам дом, Петровское15 000 000 ₽
5 июня 2025
Дата публикации объявления
Обн. 28 авг
Дата обновления объявления
114 416 ₽/м²
Чистая продажа
Термин "Чистая продажа" означает, что в квартире никто не прописан или
есть куда выписаться и вывезти вещи. Это лучший вариант для покупателя.
Вероятность срыва сделки минимальна.
Этажей2
Площадь участка12 соток
Общая площадь131,1 м2
ЭлектричествоЕсть
Газоснабжениецентральное
Номер в базе: 5690025.
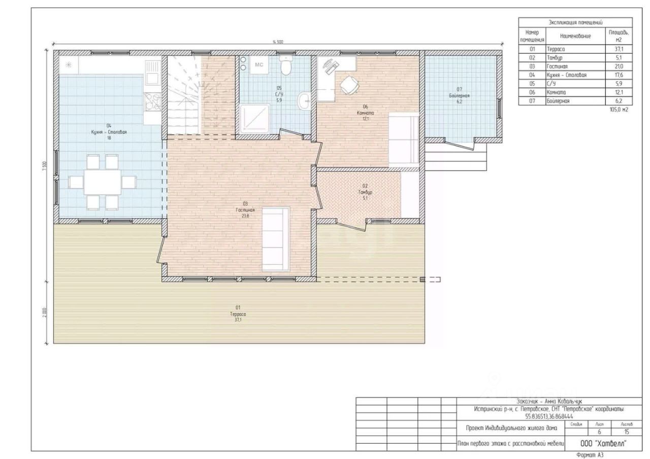
Уникальное предложение для тех, кто мечтает о комфортной и современной жизни за городом! Продается великолепный 2-этажный коттедж общей площадью 132 м², построенный с использованием только высококачественных материалов. Завершение строительства произошло в конце 2016 года, и дом был создан с любовью и заботой о каждой детали.
Функциональная планировка дома идеально подходит для жизни семьи. На первом этаже вас встретит уютная застекленная веранда, просторный тамбур с гардеробом, а также светлая кухня, оборудованная встроенной техникой и с выходом на веранду. Здесь же расположены гостиная, спальня/кабинет и санузел с ванной, который можно использовать как постирочную или гостевой туалет.
Номер в базе: 5690025.
Уникальное предложение для тех, кто мечтает о комфортной и современной жизни за городом! Продается великолепный 2-этажный коттедж общей площадью 132 м², построенный с использованием только высококачественных материалов. Завершение строительства произошло в конце 2016 года, и дом был создан с любовью и заботой о каждой детали.
Функциональная планировка дома идеально подходит для жизни семьи. На первом этаже вас встретит уютная застекленная веранда, просторный тамбур с гардеробом, а также светлая кухня, оборудованная встроенной техникой и с выходом на веранду. Здесь же расположены гостиная, спальня/кабинет и санузел с ванной, который можно использовать как постирочную или гостевой туалет.
На втором этаже находятся две спальни со встроенными шкафами и одна детская комната. Санузел с большой ванной и мансардным окном наполнит пространство естественным светом. Дом отличается светлыми и просторными комнатами благодаря множеству окон, что создает атмосферу уюта и комфорта.
В доме установлено современное оборудование, которое обеспечивает не только комфорт, но и экономию на коммунальных расходах. Геотермальный тепловой насос фирмы ''NEBO'' позволяет значительно сократить затраты на отопление, а теплые полы на всех этажах создают приятный микроклимат в любое время года. Немецкий керамогранит, использованный в отделке, гарантирует долговечность и стильный внешний вид.
Каждая комната оборудована фанкойлом для кондиционирования воздуха, что обеспечивает оптимальную температуру в любое время года. Также имеется собственная артезианская скважина глубиной 110 метров и система очистки воды, что гарантирует вам чистую и безопасную воду.
На участке 12 соток растут деревья, ухоженный газон, а также имеется навес для двух автомобилей с автоматическими воротами.
Отличная транспортная доступность и удобный выезд на Новорижское шоссе делают это место идеальным для жизни семьи. Не упустите возможность стать владельцем этого замечательного коттеджа — ваш новый дом ждет вас! Записывайтесь на просмотр! Код пользователя: 148099