сдам складское помещение, Волоколамское шоссе, 421 850 000 ₽ в месяц
23 июля 2025
Дата публикации объявления
Обн. 31 мар
Дата обновления объявления
8
Количество просмотров (+ просмотры за сегодня)
1150 ₽/м² в месяц
Параметры
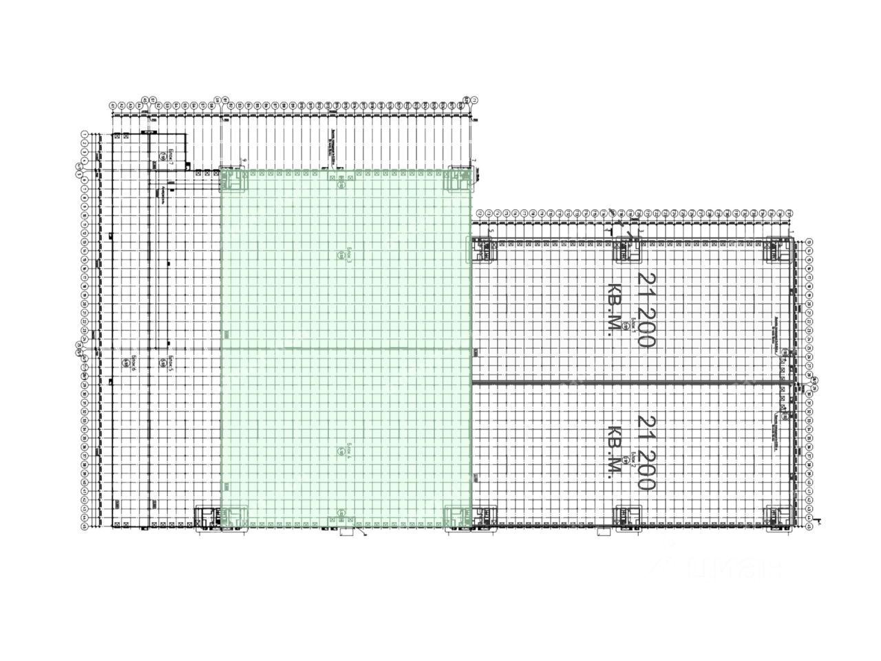
Общая площадь19000 м2
Этаж1
Год постройки2021
Складское помещение 19 000 кв. м в ''Индустриальный парк Клин''. Объект на стадии активного строительства, готовность ко въезду уточняется по запросу.
Направление: Север. Шоссе: Волоколамское, Ленинградское. Расстояние от МКАД: 80 км.
Характеристики: - Класс: A, - Ворота: Ворота на нулевой отметке, Доки, - Ограничения по электроэнергии: 5.5 мВт, - Тип склада: Производственное помещение, Сухой склад, - Высота потолков: 12 м, 9 м, - Нагрузка на пол: 6 т/ кв.м, 9 т/ кв.м, - Система пожаротушения: Спринклерная, - Тип пола: С антипылевым покрытием, - Уровень пола: 1.2 м, - Шаг колонн: 12x24 м.
Арендная ставка: 13 800 руб./кв. м в год.
Складское помещение 19 000 кв. м в ''Индустриальный парк Клин''. Объект на стадии активного строительства, готовность ко въезду уточняется по запросу.
Направление: Север. Шоссе: Волоколамское, Ленинградское. Расстояние от МКАД: 80 км.
Характеристики: - Класс: A, - Ворота: Ворота на нулевой отметке, Доки, - Ограничения по электроэнергии: 5.5 мВт, - Тип склада: Производственное помещение, Сухой склад, - Высота потолков: 12 м, 9 м, - Нагрузка на пол: 6 т/ кв.м, 9 т/ кв.м, - Система пожаротушения: Спринклерная, - Тип пола: С антипылевым покрытием, - Уровень пола: 1.2 м, - Шаг колонн: 12x24 м.
Арендная ставка: 13 800 руб./кв. м в год.
Финансовые условия: - В стоимость включено: OPEX, НДС, - Оплачивается отдельно: Коммунальные услуги, - Налог: Включая НДС.
Без комиссии и скрытых платежей для арендатора.
Готовы оперативно организовать просмотр в удобное время, предоставить PDF-презентацию и план. Точное местоположение объекта можно найти по данным координатам: 56.331209,36.678842