Если цена в объявлении изменится, мы сразу сообщим вам об этом на электронную почту.
Нажимая «Подписаться», вы соглашаетесь с правилами.
продам дом, Север, 295 990 000 ₽
16 авг 2025
Дата публикации объявления
Обн. 20 апр
Дата обновления объявления
49 917 ₽/м²
Чистая продажа
Термин "Чистая продажа" означает, что в квартире никто не прописан или
есть куда выписаться и вывезти вещи. Это лучший вариант для покупателя.
Вероятность срыва сделки минимальна.
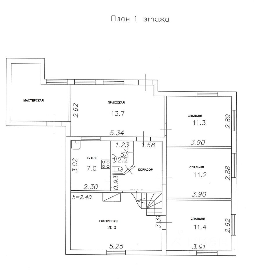
Этажей2
Площадь участка6 соток
Общая площадь120 м2
Материал домадерево
ЭлектричествоЕсть
Газоснабжениенет
Продается Загородный Дом в Сергиево Посадском г.о., СНТ Север-2, Ярославское шоссе, 67 км. От МКАД. В Экологически чистом районе со смешанным лесом , в 15 минутах ходьбы от Озера Торбеево. 16 км до Гремячего Ключа. 19 км до Радонежа. 5 км. до Сергиев-Посада. Прекрасное транспортное сообщение с Москвой по 5ти полосному шоссе. На участке 6 соток расположены: - Дом в 2 уровнях, 2010 г.
Продается Загородный Дом в Сергиево Посадском г.о., СНТ Север-2, Ярославское шоссе, 67 км. От МКАД. В Экологически чистом районе со смешанным лесом , в 15 минутах ходьбы от Озера Торбеево. 16 км до Гремячего Ключа. 19 км до Радонежа. 5 км. до Сергиев-Посада. Прекрасное транспортное сообщение с Москвой по 5ти полосному шоссе. На участке 6 соток расположены: - Дом в 2 уровнях, 2010 г. постройки, общая площадь 120 м2 , из бруса, утеплен 15 см, обшит сайдингом (кухня, гостиная, 4 спальни, с/у,) в доме есть камин, - Баня 50 м2 из оцелиндрованного бревна, есть печь- камин (комната отдыха с камином, душ, с/у, сауна, 1 спальня), На участке: Открытый летний бассейн, детская площадка, шикарный дуб и береза, газон, во дворе плодоносящие деревья, палисадник, хвойники, кустарники, цветы. Имеется крытая парковка на 2 а/м с металлическим навесом . СНТ окружено лесом, много грибов, рыбалка. Установлен новый трансформатор. Планировка и расположение в Загородном доме очень практичная и удобная, подойдет для проживания большой семьи. Коммуникации - электроснабжение- 3 фазы, 380 В, водоснабжение артезианская общая скважина, водоснабжение заведено по летнему, канализация — септик, отопление электрическое. В СНТ небольшое, всего 100 участков, коллектив дружный, есть общий чат. Закрытая Территория, КПП.