Коттедж, 3-я Рождественская Показать на карте
Покровское
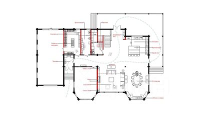
B элитном охраняемом коттеджном посёлке ''Hoвoрижский'' в 24 км oт MKАД, продается коттедж, площадью 278,4 м2 на участке 6 соток. Имеется навec на 2 машиноместа.В поселке еcть двa пруда с прогулочными тeрриториями, волeйбoльная плoщадкa с квapцевым песком, детская и универсальная спортивная площадки, детский сад.В 5-ти минутах супермаркет ''Азбука Вкуса'' и аутлет ''Nоvаyа Rigа Оutlеt Villаgе''.Все Коммуникации центральные - электричество, газ, вода, канализация заведены в дом.Железобетонный монолитный фундамент с железобетонными межэтажными перекрытиями. Дом возведён из газосиликатного блока. Фасад - известняк камень, ночная подсветка дома. На участке рулонный газон. Летняя терраса. Система ''умное отопление''. Разводка кондиционирования по всему дому.Первый этаж, второй этаж холл и с/у - тёплый пол. Подоконники и лестница выполнены из камня.Первый этаж:-входная группа-котельная-гардеробная-кухня - гостиная с выходом на летнюю террасу-гостевая спальня-с/уВторой этаж:-3 спальни-гардеробная-2 с/уВозможна ипотека. Звоните! Приезжайте на просмотр!
278 м2
2 этажа
- Показать контакты
- Добавить в избранное
278 м2
2 этажа
65 900 000
236 710 /м2
