Коттедж, Рождествено, 9 ст2 Показать на карте
Рождествено
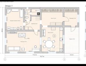
Готовый дом 47 по проекту ''Хельсинки Премиум'' в коттеджном поселке бизнес-класса Рождествено. К дому подключены коммуникации: электричество, водопровод, канализация, оптоволоконный интернет. В стоимость входит выровненный участок 5,5 соток. Дизайн-проект в подарок. Дом построен из проверенных материалов высшего качества. Он надежен, долговечен и прост в эксплуатации. Конструктив дома выполнен из крупноформатного кирпича Porotherm 44 см. Дом не поддается усадке из-за прочности и легкости материала. Porotherm гарантирует энергоэффективность: зимой материал сохраняет тепло и позволяет экономить на отоплении, а летом не перегревается.В доме высокие потолки 3 метра, большие окна во всех комнатах, а в зоне кухни-гостиной панорамное окно 2,7 х 2,8 метров с выходом на террасу. Такая архитектура наполняет внутреннее пространство домов естественным светом и позволяет в полной мере наслаждаться окружающей природой. В декоративных решениях фасада использован клинкерный кирпич Recke и Braer. Клинкер не требует окраски, пропитки и других дополнительных действий после укладки. При этом, материал устойчив к воздействию агрессивной внешней среды и сохраняет первоначальный внешний вид в течение десятилетий.Коттеджный поселок Рождествено расположен 28 км от МКАД по Волоколамскому или Новорижскому шоссе в окружении природных пейзажей. В поселке есть собственный выход в лес, где жители поселка гуляют, ездят на велосипедах или совершают прогулки на беговых лыжах и снегоходах. До Истринского водохранилища с муниципальными и частными пляжами 25 минут на автомобиле.Поселок полностью построен. Закрытая территория круглосуточно охраняется, ведется патрулирование, въезд осуществляется только через КПП по пропускам. На территории поселка: Детские и спортивные площадки для энергичных и динамичных Теннисные корты с профессиональный покрытием Широкие асфальтированные дороги, мощеные тротуары и пешеходные тропинки Беседка для коворкинга Высаженные деревья и вечнозеленые кустарникиИнфраструктура рядом:Школы и детские сады в 2 мин на личном авто или в 5 мин на автобусе.Сетевые магазины и фермерские лавки в пределах 2 км от поселка. Кафе и рестораны с доставкой на дом. Пункты выдачи маркетплейсов в 2 мин на авто или в 8 мин на автобусе: Яндекс Маркет, Ozon, Wildberries.Автобусная остановка рядом с КПП поселка.Запишитесь на экскурсию по поселку! Будем рады видеть вас!
170 м2
2 этажа
Кирпич
- Показать контакты
- Добавить в избранное
170 м2
2 этажа
Кирпич
17 800 000
104 706 /м2
